БМК мощностью 386 кВт отапливает цех в Краснодаре.
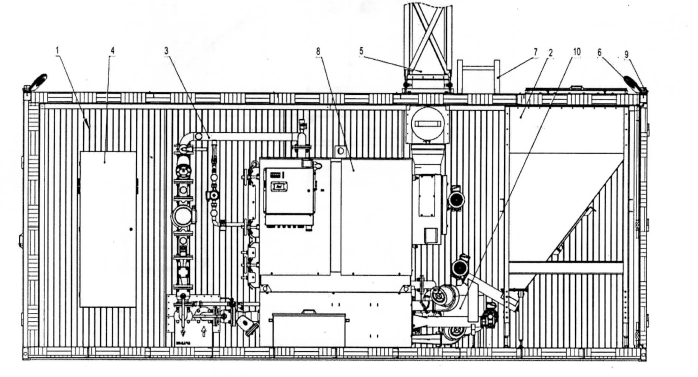
Нашему клиенту из Краснодара нужно было решить, как лучше отапливать цех по производству абразивных материалов. Заказчик выбрал блочно-модульную котельную FACI мощностью 386 кВт на пеллетах, так как это был быстрый и удобный вариант решения проблемы отопления на производстве.
Благодаря сотрудничеству с FACI у бизнесмена появилась возможность воспользоваться программой лизинга, так как это оказалось выгоднее и не требовало проведения полной оплаты одномоментно. К слову, на готовую котельную в большинстве случаев лизинг одобряют без проблем, нежели на проекты, которые еще предстоит реализовать.
Блочно-модульная котельная FACI оперативно поступила в распоряжение клиента. А чтобы улучшить ее эксплуатационные характеристики, было решено приобрести для БМК отдельный уличный бункер - тоже марки FACI.
Бункер FACI DI STRADA емкостью до 7 м3 и автоматической подачей в оперативный бункер котла позволил значительно увеличить автономность БМК.
Сейчас БМК FACI в штатном режиме отапливает цех и полностью устраивает клиента!
Блочно-модульная котельная FACI - это выгодное и оперативное решение проблемы отопления на производственном предприятии:
|
|
![]() |

Возведение стационарной котельной, в отличие от блочно-модульной, - весьма долгосрочный проект, реализация которого вынуждает заказчика затрачивать колоссальное количество времени и сил, чтобы контролировать строительство на всех этапах. И гарантия дается только на отдельные составляющие котельной (насосы, котлы, запорную арматуру) от разных поставщиков, а не всё оборудование, как в случае с блочно-модульной.